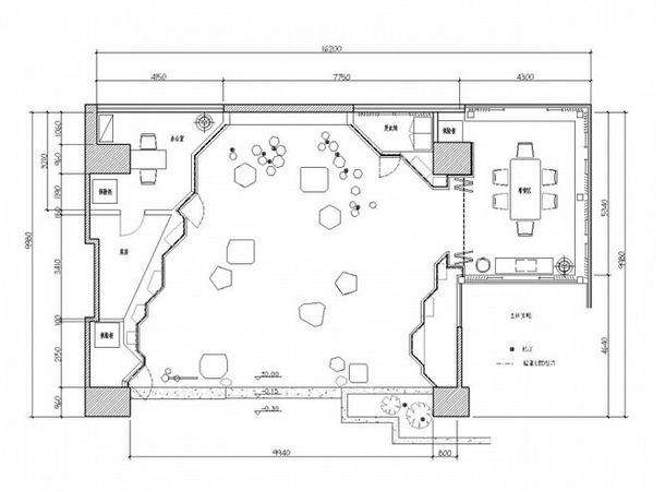
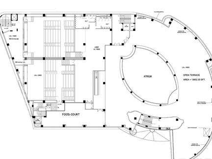
藝術展廳設計平面圖欣賞
文章來源:華文創意展覽設計???????文章作者:華文小編???????瀏覽: ???????發布日期:2019-12-30
摘要:藝術展廳設計師文化和創意的融合,不同風格的展廳設計也會導致平面圖的不同,從一個平面圖可以看出這個展廳的俯視和整體展廳的構造,已經人流動向和板塊的排版等。......
藝術展廳設計師文化和創意的融合,不同風格的展廳設計也會導致平面圖的不同,從一個平面圖可以看出這個展廳的俯視和整體展廳的構造,已經人流動向和板塊的排版等。也可以看出設計師的設計思路和里面模板的主次,以及表達的含義是什么。
摘要:藝術展廳設計師文化和創意的融合,不同風格的展廳設計也會導致平面圖的不同,從一個平面圖可以看出這個展廳的俯視和整體展廳的構造,已經人流動向和板塊的排版等。......



昆明華文創意展覽有限公司(www.weijingxiao.com)是一家以規劃館,博物館,黨建館等各類文化主題展館數字化策劃布展的專業性公司。公司秉承“文化創意,科技創新”的理念,以數字化智慧展廳引領者為己任。
依托十二年的展覽展示策劃,設計布展經驗,十年設計師團隊,專業為企業展館,產品展廳,黨建展廳,規劃館,博物館,主題館等提供整體策劃、方案設計、布展施工、多媒體安裝調試、軟件開發定制,宣傳片制作和數字沙盤定制等一體化總承包服務。公司為西南數字化智慧展廳總承包行業引領者。
文本標題:藝術展廳設計平面圖欣賞
本站提供展廳設計知識,轉載請注明:http://www.weijingxiao.com/xw-hy/98.html


